Close
首頁
法拍出售
房屋出租
社區大樓
法拍土地
委託買賣
公司簡介
精英團隊
人才招募
不動產知識
google查詢
屏東車城透天法拍
首頁
法拍出售
房屋出租
社區大樓
法拍土地
委託買賣
公司簡介
精英團隊
人才招募
不動產知識
google查詢
首頁
›
法拍出售
›
屏東法拍透天
›
車城法拍透天
›
屏東車城透天法拍
屏東車城透天法拍|車城透天車墅3樓
售
看海美術館車城國小輕屋齡3樓透天美墅拍
列印
售635萬
案號:
車城海口路
類型:
法拍透天_別墅_一樓
總登記坪數:
49.61坪
每坪單價:
12.8萬/坪
地址:
屏東縣車城鄉海口路
蘇副理
(煩請告知聯絡人,您是在House-Info房屋網看到廣告,感恩幫忙)
0934-087-640
市話:
0934087640
公司名稱:
一零四高欣仲介經紀有限公司
公司地址:
高雄市苓雅區海邊路65號9樓
我要留言
物件介紹
詳細資料
銷售狀態
:
待標中
格局
:
4房,2廳,4衛,3陽台,1廚房
屋齡
:
8年
車位
:
一樓平面車位
所在樓層
:
共3樓
電梯
:
未知
法拍屋
:
是
拍次
:
四拍
瀏覽人次
:
68人次
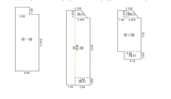
坪數說明
建物登記總坪數
:
49.61
主建物
:
49.61
土地登記總坪數
:
35
特色描述
104法拍屋四大保證:
一、過濾案件︰保證產權清楚,過濾瑕疵案件
二、評估標價︰保證標得到又標得便宜
三、包辦點交︰保證和諧快速交屋附點交保固書
四、代墊尾款︰保證提供尾款代墊
◎沒得標•免付費
!!竭‧誠‧為‧您‧服‧務
您所擔心的問題就是我們的專業
專業的問題,就交給專業有信用有口碑的團隊
代標顧問:蘇副理0934087640
目前拍次為四拍635
萬(有點交)
《請來電洽詢進場拍次‧讓您標得到又標得低!》
Google 高雄法拍顧問 蘇副理
0934087640
更多精選好屋
❤️買房網:
買屋網 mywoo-蘇秀珠 豪宅規格親民價
❤️LINE :
https://reurl.cc/28k2L9
請點選連結可加LINE好友
❤️FB :
https://reurl.cc/qZ1MNE
特別徵選低總價物件
❤️樂屋網 :
vip.rakuya.com.tw/0934087640/sell
更多精選物件請點連結
❤️
便宜房子何處找
?
https://shorturl.at/qY5qG
※※
法拍有時效性
法拍資訊以法院公告為準
※※
※※法拍屋不能看內部 請來電洽詢詳細地址
車城透天法拍-0
車城透天法拍-1
車城透天法拍-2
車城透天法拍-3
車城透天法拍-4
車城透天法拍-5
物件留言
請注意,如果您詢問的內容與物件不相符合或是廣告,經過審核,系統將會直接刪除您的發問內容
住宅分類
車城法拍公寓
車城法拍大樓
車城法拍華廈
車城法拍套房
車城法拍透天
車城法拍農舍
車城法拍別墅
車城法拍一樓
車城法拍工業宅
車城法拍店面
車城法拍廠房
車城法拍廠辦
車城法拍商辦
車城法拍辦公室
車城法拍倉庫
免責聲明:House-Info房屋網平台系統為租用式開放房屋買賣網站建置平台,僅提供會員查詢-
屏東縣
,
車城鄉
,
透天
-等房屋資訊參考,並不涉入任何諮詢、交易。 物件(服務)聯絡人公佈的資訊、文字、照片、圖形、產權、廣告內容、或其他資料若有不實或違法情事,或與客戶聯絡交易過程中若衍生民事或刑事等法律問題,皆與House-Info房屋網站無關,所有商標、文章、名稱等版權,皆歸屬原著作者所有!
屏東法拍屋
|
屏東縣法拍屋
|
屏東法拍屋公告
|
買屏東法拍屋
|
屏東縣法拍屋
|
屏東法拍屋買賣
|
屏東法拍屋
|
屏東法拍屋拍賣
資料處理中,請稍後...