Close
首頁
法拍出售
房屋出租
社區大樓
法拍土地
委託買賣
公司簡介
精英團隊
人才招募
不動產知識
google查詢
湖內區透天法拍
首頁
法拍出售
房屋出租
社區大樓
法拍土地
委託買賣
公司簡介
精英團隊
人才招募
不動產知識
google查詢
首頁
›
法拍出售
›
高雄法拍透天
›
湖內法拍透天
›
湖內區透天法拍
湖內區透天法拍|中山路一段透天車墅
售
近大湖國小大湖夜市大面寬大地坪4樓車墅拍1535萬
列印
售1535萬
案號:
湖內區中山路一段
類型:
法拍透天_別墅_一樓
總登記坪數:
103.44坪
每坪單價:
14.84萬/坪
地址:
高雄市湖內區中山路
蘇副理
(煩請告知聯絡人,您是在House-Info房屋網看到廣告,感恩幫忙)
0934-087-640
市話:
0934087640
公司名稱:
一零四高欣仲介經紀有限公司
公司地址:
高雄市苓雅區海邊路65號9樓
我要留言
物件介紹
詳細資料
銷售狀態
:
待標中
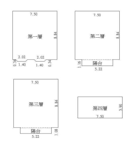
格局
:
4房,2廳,3衛,4陽台,1廚房
屋齡
:
14年
車位
:
室內雙車庫
所在樓層
:
共4樓
電梯
:
未知
面前道路
:
8米
面寬
:
7.5米
縱深
:
8.8米
是否凶宅
:
不是
法拍屋
:
是
拍次
:
一拍
開標日期
:
02/03
瀏覽人次
:
78人次
坪數說明
建物登記總坪數
:
103.44
主建物
:
72.86
土地登記總坪數
:
48.66
特色描述
104法拍屋四大保證:
一、過濾案件︰保證產權清楚,過濾瑕疵案件
二、評估標價︰保證標得到又標得便宜
三、包辦點交︰保證和諧快速交屋附點交保固書
四、代墊尾款︰保證提供尾款代墊
◎沒得標•免付費
!!竭‧誠‧為‧您‧服‧務
您所擔心的問題就是我們的專業
專業的問題,就交給專業有信用有口碑的團隊
代標顧問:蘇副理0934087640
目前拍次為115/02/03一拍1535
萬
(有點交)
《請來電洽詢進場拍次‧讓您標得到又標得低!》
Google 高雄法拍顧問 蘇副理
0934087640
更多精選好屋
❤️買房網:
買屋網 mywoo-蘇秀珠 豪宅規格親民價
❤️LINE :
https://reurl.cc/28k2L9
請點選連結可加LINE好友
❤️FB :
https://reurl.cc/qZ1MNE
特別徵選低總價物件
❤️樂屋網 :
vip.rakuya.com.tw/0934087640/sell
更多精選物件請點連結
❤️
便宜房子何處找
?
https://shorturl.at/qY5qG
※※
法拍有時效性
法拍資訊以法院公告為準
※※
※※法拍屋不能看內部 請來電洽詢詳細地址
高雄湖內法拍透天-0
高雄湖內法拍透天-1
高雄湖內法拍透天-2
高雄湖內法拍透天-3
高雄湖內法拍透天-4
物件留言
請注意,如果您詢問的內容與物件不相符合或是廣告,經過審核,系統將會直接刪除您的發問內容
住宅分類
三民區法拍透天
大社法拍透天
大寮法拍透天
大樹法拍透天
小港法拍透天
仁武法拍透天
內門法拍透天
六龜法拍透天
左營法拍透天
永安法拍透天
田寮法拍透天
甲仙法拍透天
杉林法拍透天
那瑪夏法拍透天
岡山法拍透天
林園法拍透天
阿蓮法拍透天
前金法拍透天
前鎮法拍透天
美濃法拍透天
茄萣法拍透天
茂林法拍透天
苓雅法拍透天
桃源法拍透天
梓官法拍透天
鳥松法拍透天
湖內法拍透天
新興區法拍透天
楠梓法拍透天
路竹法拍透天
鼓山法拍透天
旗山法拍透天
旗津法拍透天
鳳山法拍透天
橋頭法拍透天
燕巢法拍透天
彌陀法拍透天
鹽埕法拍透天
免責聲明:House-Info房屋網平台系統為租用式開放房屋買賣網站建置平台,僅提供會員查詢-
高雄市
,
湖內區
,
透天
-等房屋資訊參考,並不涉入任何諮詢、交易。 物件(服務)聯絡人公佈的資訊、文字、照片、圖形、產權、廣告內容、或其他資料若有不實或違法情事,或與客戶聯絡交易過程中若衍生民事或刑事等法律問題,皆與House-Info房屋網站無關,所有商標、文章、名稱等版權,皆歸屬原著作者所有!
高雄法拍屋
|
高雄市法拍屋
|
高雄法拍屋公告
|
買高雄法拍屋
|
高雄市法拍屋
|
高雄法拍屋買賣
|
高雄法拍屋
|
高雄法拍屋拍賣
資料處理中,請稍後...